Villa a schiera in vendita

Olginate, Via Cà Romano
€ 170.000
3 locali 3 locali
94 Mq 94 Mq
2 bagni 2 bagni

Villa a schiera in vendita

Olginate, Via Cà Romano

Descrizione annuncio

COSA SAPERE SULLA CASA

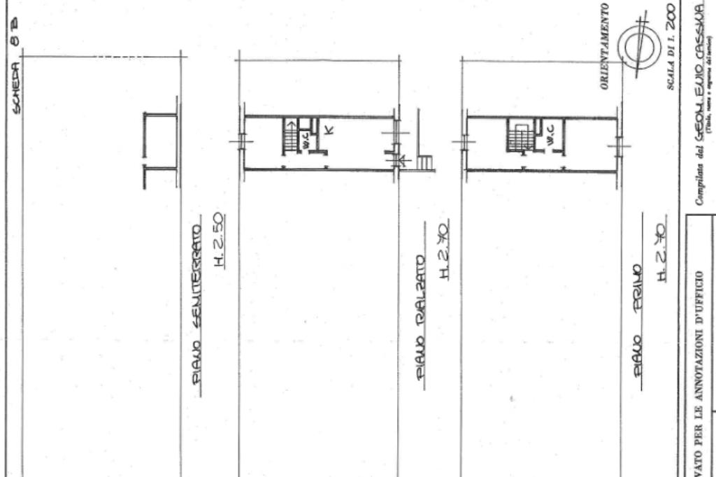
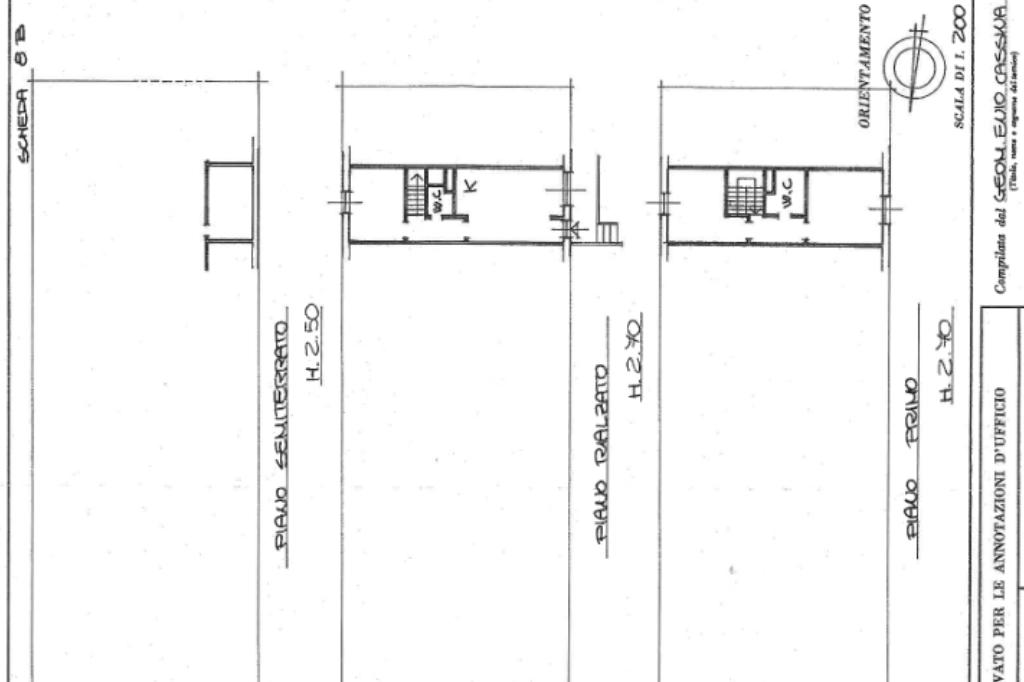
Porzione di casa centrale con giardino, box e cantina.

PARTICOLARITA' e DESCRIZIONE

Edificata alla fine degli anni '80, questa casa si presenta ben tenuta nelle condizioni orginali. La disposizione abitativa si sviluppa su 2 livelli, con l'intera zona giorno al piano terra e la zona notte al piano primo.

La cucina è un ambiente luminoso, il primo che si incontra entrando nell'abitazione e questo la rende il centro dell'immobile. Al piano terra vi è inoltre il soggiorno e un bagno di servizio. Al piano superiore, camera doppia e camera matrimoniale, oltre al bagno. L'immobile è dotato di un giardino di circa 20 mq sul fronte ed un altro scollegato di circa 30 mq sul retro (utilizzabile come orto). La proprietà è completata da un box ampio con all'interno la zona lavanderia ed una cantina.

L'immobile viene venduto per esigenze di natura abitativa della proprietà.

Se questa proposta ti interessa, contattaci per fissare un incontro, dove un nostro incaricato effettuerà una pre qualifica e discuterà con te tutti i dettagli.

Offriamo a tutti i nostri clienti una consulenza creditizia gratuita, fornita da uno dei nostri consulenti di Kiron Partner SPA, la società di mediazione creditizia del Gruppo Tecnocasa, attiva da oltre 25 anni e prima in Italia per dimensioni ed esperienza. Potrai accedere a prodotti finanziari pensati per soddisfare le reali necessità di ciascuno.

Siamo una realtà solida e ben organizzata con uffici a Pescate e Oggiono, che operano in sinergia per garantire una copertura capillare su tutto il territorio. La nostra struttura, altamente professionale e precisa, ci permette di offrire un servizio personalizzato e puntuale, sia a chi cerca casa sia a chi desidera vendere un immobile in totale sicurezza.

Inoltre, siamo costantemente alla ricerca di nuovi immobili da proporre ai clienti presenti nella nostra banca dati nei comuni di: Oggiono, Dolzago, Annone Brianza, Castello Brianza, Ello, Colle Brianza, Galbiate, Pescate, Garlate, Olginate, Valgreghentino e limitrofi. Se possiedi una casa da vendere, contattaci: ti guideremo attraverso il processo senza rischi, grazie alla nostra esperienza consolidata e alla nostra rete capillare.

Scopri quanto vale davvero la tua casa! La nostra valutazione gratuita ti fornirà una visione chiara e realistica, basata sul mercato attuale, per permetterti di fare scelte informate e sicure. Se sei già proprietario di casa e desideri cambiarla, contattaci per scoprire i nostri servizi dedicati alla permuta o alla semplice compravendita.
Il nostro team sarà a tua disposizione per aiutarti a ottenere il massimo valore dalla tua proprietà e rendere il processo di cambio casa semplice e sicuro.

#GRUPPOTECNOCASAOGGIONO #GRUPPOTECNOCASAPESCATE #AGENZIAIMMOBILIARE PESCATE
Contattaci subito al numero 0341 576632: siamo pronti ad aiutarti a realizzare il tuo sogno immobiliare con serietà e professionalità.

Mostra tutto

Nelle vicinanze

Trasporto pubblico Trasporto pubblico
stazione di Calolziocorte-Olginate
stazione di Calolziocorte-Olginate
2,2 Km
Trasporto pubblico
1,7 Km
Airuno
Airuno
3,0 Km
Ricariche auto elettriche Ricariche auto elettriche
Acqua e Sapone Calolziocorte | EnelX
1,4 Km
Iperal Calolziocorte
1,5 Km
Scuole Scuole
Scuola dell'Infanzia Charlie Chaplin
1,2 Km
Scuola Primaria Statale Gianni Rodari
1,2 Km
Istituto Superiore Lorenzo Rota
1,4 Km
Scuola Primaria di Sala
1,7 Km
Scuola Primaria Foppenico
1,9 Km
Farmacia Farmacia
Farmacia Santi Cosma e Damiano
1,7 Km
Farmacia dott.sa Fedeli
2,4 Km
Farmacia
2,7 Km
Supermercati Supermercati
Carrefour Market
60 m
Penny
490 m
Iperal
1,5 Km
Conad
1,8 Km
Brico Ok
1,8 Km
Bar Bar
La Pontevilla
350 m
Bar Oratorio
710 m
Bar
1,1 Km
Il Mein
1,7 Km
Molo - Lido di Vercurago
2,8 Km
Ristoranti Ristoranti
La Fiorita
160 m
Pianeta Pizza
710 m
Ristoranti
1,1 Km
Osteria Marascia
1,1 Km
The Bridge
1,2 Km
Mostra tutto

Caratteristiche

Rif.:
61122101
Piano:
1 di 2 (Piano su più livelli)
Box:
1
Terrazzi:
1
Camere da letto:
2
Arredamento:
Assente
Mostra tutto
Prezzo Prezzo
€ 170.000
Rata mutuo Rata mutuo
€ 802 / mese
Spese annue Spese annue
€ 800
Proponi il tuo prezzoProponi il tuo prezzo

Classe Energetica

F
F
F
F
F
F
F
F
F
EP globale non rinnovabile:
170.41 kW h/m² anno
EP globale rinnovabile:
0.00 kW h/m² anno
EP invernale del fabbricato:
EP estiva del fabbricato:
Anno di costruzione:
1988
Riscaldamento:
Autonomo
Tipo impianto:
A radiatori
Tipo alimentazione:
Metano

Ti interessa visionare l'immobile?

Fissa un appuntamento  Fissa un appuntamento

Richiedi informazioni

Clicca su Leggi per aprire l'informativa
* Questi campi sono obbligatori

Calcola il tuo mutuo

Semplice e senza impegno
Anticipo

( % )
Mutuo

( % )

pochi semplici passi

inserisci i tuoi dati
Questionario completato
Grazie per aver richiesto un appuntamento senza impegno con un nostro Consulente del Credito e Assicurativo.

Hai inserito correttamente tutti i dati necessari e a breve riceverai una e-mail con un link da convalidare per inviare i tuoi dati.
Affiliato
Studio Oggiono Sas
Via Roma, 78 23855 Pescate (LC)

Il nostro staff


  • Antonino Meduri
    Responsabile

  • Clarissa Milani
    Coordinatrice

  • Robinson Airoldi
    Collaboratore

  • Ignazio Zaccaria
    Affiliato
Via Roma, 78 23855 Pescate (LC)
Zona: Pescate-Galbiate-Garlate-Olginate-Val Greghentino
Mostra su mappa
Affiliato
Studio Oggiono Sas
Via Roma, 78 23855 Pescate (LC)

2025 Tecnocasa Franchising S.p.A. - P. IVA 08365160152 - Via Monte Bianco 60/A 20089 Rozzano (MI). Ogni agenzia ha un proprio titolare ed è autonoma. Privacy policy | Policy utilizzo | Cookie policy